A Rock Solid Alibi.....

Users Currently Browsing This Topic:
0 Members

Author Topic: A Rock Solid Alibi.....  (Read 191940 times)

Online Charles Collins

  • Hero Member
  • *****
  • Posts: 4308
Re: A Rock Solid Alibi.....
« Reply #544 on: September 02, 2022, 12:36:29 AM »
Advertisement
Simply because neither Piper nor West recalled seeing Lee Oswald walk across the 1st floor from the Domino room to the stairs doesn't preclude the fact that Lee did walk from the Domino room to the stairs.... It's entirely possible that Lee could have walked across the room and the sounds of the gunshots distracted Piper and West and the  the routine event of a person walking across the room did not enter their memory banks.


West didn’t hear the gunshots, so your theory doesn’t apply to him.

What I am thinking is that the first floor is an open area for the most part. I don’t remember seeing any photos that show for sure that there is a clear view from West’s workstation area to the path that one would take from the domino room to the stairs. Unless there was some physical barrier to block that view, that I am not aware of, I think that they would have had a clear view. I don’t have a problem saying that there is a possibility that both of them might not have noticed. But if you believe that that is possible, then you really should admit that Dorothy Garner could have not noticed too. Also, BRW could have not noticed someone hidden and being as quiet as a mouse in the sniper’s nest…

JFK Assassination Forum

Re: A Rock Solid Alibi.....
« Reply #544 on: September 02, 2022, 12:36:29 AM »


Offline Martin Weidmann

  • Hero Member
  • *****
  • Posts: 7952
Re: A Rock Solid Alibi.....
« Reply #545 on: September 02, 2022, 01:06:32 AM »

West didn’t hear the gunshots, so your theory doesn’t apply to him.

What I am thinking is that the first floor is an open area for the most part. I don’t remember seeing any photos that show for sure that there is a clear view from West’s workstation area to the path that one would take from the domino room to the stairs. Unless there was some physical barrier to block that view, that I am not aware of, I think that they would have had a clear view. I don’t have a problem saying that there is a possibility that both of them might not have noticed. But if you believe that that is possible, then you really should admit that Dorothy Garner could have not noticed too. Also, BRW could have not noticed someone hidden and being as quiet as a mouse in the sniper’s nest…

I don’t have a problem saying that there is a possibility that both of them might not have noticed. But if you believe that that is possible, then you really should admit that Dorothy Garner could have not noticed too.

Apples and oranges.

Garner was standing directly next to the stairs. West and Piper were some distance away and unaware something was going on until police started to come into the building.

It's utterly dishonest to compare the two situations as if they were equal. West and Piper also did not notice Jarman and Norman as well as Adams and Styles and we know for a fact all four were in fact in the same area where Oswald would have walked.
« Last Edit: September 02, 2022, 01:10:36 AM by Martin Weidmann »

Offline Walt Cakebread

  • Hero Member
  • *****
  • Posts: 7322
Re: A Rock Solid Alibi.....
« Reply #546 on: September 02, 2022, 01:13:41 AM »
I don’t have a problem saying that there is a possibility that both of them might not have noticed. But if you believe that that is possible, then you really should admit that Dorothy Garner could have not noticed too.

Apples and oranges.

Garner was standing directly next to the stairs. West and Piper were some distance away and unaware something was going on until police started to come into the building.

It's utterly dishonest to compare the two situations as if they were equal. West and Piper also did not notice Jarman and Norman as well as Adams and Styles and we know for a fact all four were in fact in the same area where Oswald would have walked.

Excellent rebuttal, Martin.  Thanks for saving me from having to respond....

JFK Assassination Forum

Re: A Rock Solid Alibi.....
« Reply #546 on: September 02, 2022, 01:13:41 AM »


Offline Martin Weidmann

  • Hero Member
  • *****
  • Posts: 7952
Re: A Rock Solid Alibi.....
« Reply #547 on: September 02, 2022, 01:32:40 AM »
Excellent rebuttal, Martin.  Thanks for saving me from having to respond....

Well, you still might, because Charles has said he won't be reading my posts anymore.

That will not stop me from posting and replying to his obvious attempt to take the sting out of Dorothy Garner not seeing Oswald.

Offline Walt Cakebread

  • Hero Member
  • *****
  • Posts: 7322
Re: A Rock Solid Alibi.....
« Reply #548 on: September 02, 2022, 01:35:44 AM »
Well, you still might, because Charles has said he won't be reading my posts anymore.

That will not stop me from posting and replying to his obvious attempt to take the sting out of Dorothy Garner not seeing Oswald.

If Charlie persists .... I'll just copy your response and post it, because I can't improve on your rebuttal.

JFK Assassination Forum

Re: A Rock Solid Alibi.....
« Reply #548 on: September 02, 2022, 01:35:44 AM »


Offline Walt Cakebread

  • Hero Member
  • *****
  • Posts: 7322
Re: A Rock Solid Alibi.....
« Reply #549 on: September 02, 2022, 02:18:16 AM »

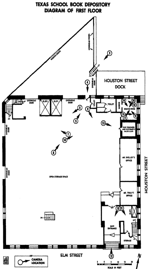
Okay, I found out where this area is located by reading the WC testimony of Troy Eugene West. It is about the middle of the west wall of the first floor. It is where the wrapping machine that West used to wrap the packages is located.

So, I have another question for anyone who subscribes to the idea that LHO was in the domino room when the shots were fired.

In order to get to the second floor break room where Truly and Baker encountered him, LHO would have had to leave the domino room, and walk across the first floor to the stairs. This would have had to occur immediately after the shots were fired in order for the timing to work out. However, both Eddie Piper and Troy Eugene West were on the first floor, but neither one saw LHO do this trek across the first floor at that time. West was at his work station, and Piper was on his way toward West’s work station. Is there some legitimate reason why these two men wouldn’t have seen LHO walking across the first floor at this time? Just asking…

In order to get to the second floor break room where Truly and Baker encountered him, LHO would have had to leave the domino room, and walk across the first floor to the stairs. This would have had to occur immediately after the shots were fired in order for the timing to work out.

What do you mean by "In order for the timing to work out"?


Offline Jerry Freeman

  • Hero Member
  • *****
  • Posts: 3723
Re: A Rock Solid Alibi.....
« Reply #550 on: September 02, 2022, 06:23:40 AM »
One particular thought is not only what Ms Garner might have seen but also what she could have probably heard.
The trek from the domino room to the stairs would be about 80 feet. That should be easily done in 30 secs. No big feat for someone
who allegedly walked 6 [250 ft] blks in 5 minutes or less right?


Offline Martin Weidmann

  • Hero Member
  • *****
  • Posts: 7952
Re: A Rock Solid Alibi.....
« Reply #551 on: September 02, 2022, 09:42:16 AM »
In order to get to the second floor break room where Truly and Baker encountered him, LHO would have had to leave the domino room, and walk across the first floor to the stairs. This would have had to occur immediately after the shots were fired in order for the timing to work out.

What do you mean by "In order for the timing to work out"?

It is nonsense. Oswald could have gone up to the 2nd floor lunchroom shortly before the shots were fired. I suppose this is where the bottle of Coke comes in. IIRC, Baker initially said that Oswald had the bottle in his hand, which means he had already been in the lunchroom long enough to operate the vendingmachine before Baker encountered him.

But that doesn't sit well for the 6th floor scenario and it would reduce the available time for Oswald to get to the lunchroom even further. That's why Baker scratched out the mentioning of the Coke bottle in his second affidavit. Without the bottle, he could claim he saw Oswald walk away from the dividing door, which of course would suggest he had just arrived there.

JFK Assassination Forum

Re: A Rock Solid Alibi.....
« Reply #551 on: September 02, 2022, 09:42:16 AM »